Rif: IMMO-98470764
NAPOLI
NAPOLI - zona Pigna - Omodeo
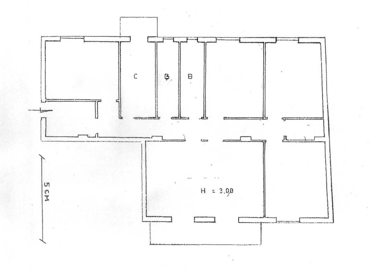
Ampio appartamento in parco custodito, in prossimità dell'incrocio tra via Jannelli e Via Simone Martini, in zona ben servita, poco distante dal centro del Vomero e dagli svincoli della Tangenziale. L'abitazione è composta da ingresso, salone doppio, cucina, quattro camere, doppi servizi e ripostiglio. La superficie è di circa 150 mq oltre i balconi. La doppia esposizione, la tipologia costruttiva, la pianta squadrata e le numerose aperture, rendono possibili varie soluzioni progettuali secondo le proprie esigenze; come pure un eventuale frazionamento in due unità indipendenti. L'immobile è dotato di posto auto coperto. Vi è, inoltre, possibilità di parcheggio auto e moto nel parco. Il prezzo è di Eu. 495.000
Consistenze
| Descrizione | Superficie | Sup. comm. |
|---|---|---|
| Principali | ||
| Immobile - 2° piano | 144 Mq | 144 Mqc |
| Balcone - 2° piano | 12 Mq | 6 Mqc |
| Totale | 150 Mqc | |

